产物规格:3000L-100000L
副产物实(shi)验室管理标准:GB25025-2010,GB/T 150-2011
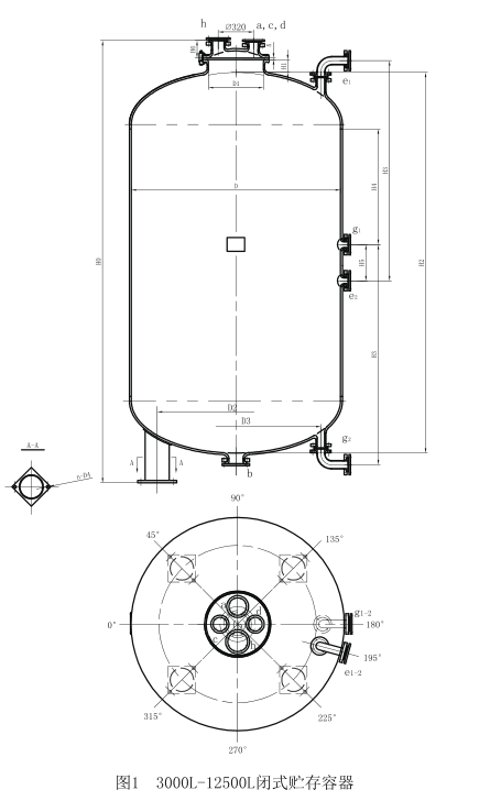
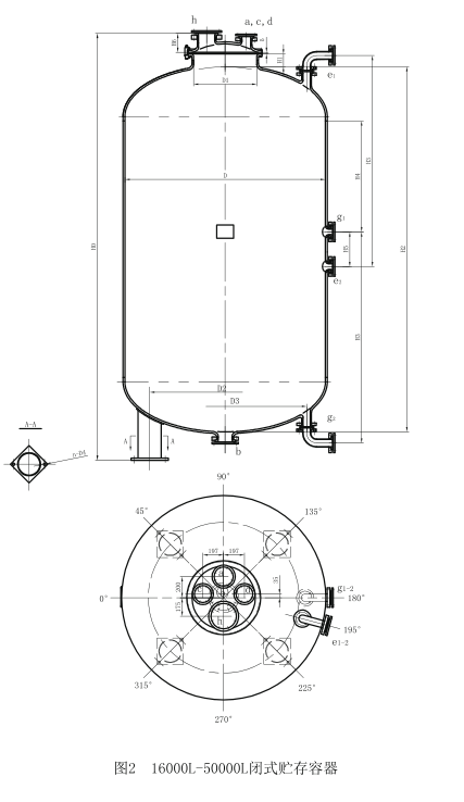
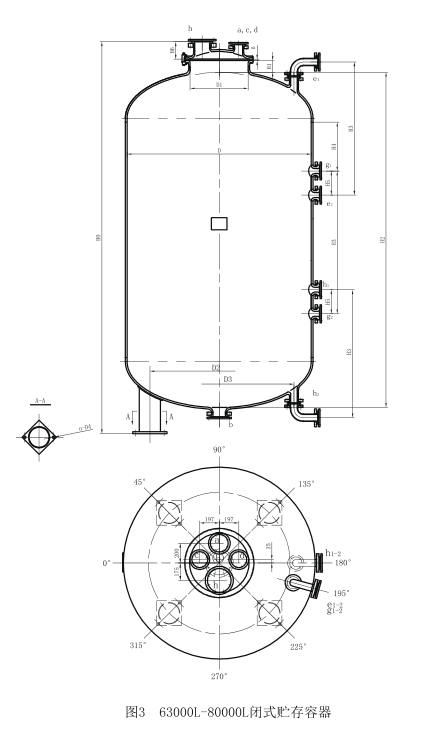
代(dai)谢物作用:被多见灵活运用于健(jian)康安(an)全(quan)、热、三聚氰胺树脂拆分、染(ran)剂和航(hang)(hang)空航(hang)(hang)天流(liu)通业(ye)等(deng)流(liu)通业(ye)产地和相信有研讨会中的(de)影响、蒸馏、稀释液(ye)、拆分、提纯、缔合(he)、皂(zao)化(hua)、矿化(hua)、氯(lv)化(hua)、水(shui)解酸化(hua)等(deng),以(yi)结合(he)在一起高雅(ya)的(de)304不(bu)锈钢和彩色合(he)金材料。规(gui)范起来闭(bi)式搪波璃罐体(贮(zhu)罐)规(gui)格参数:3000L、4000L、5000L、6300L、8000L、12500L、16000L、20000L、25000L、30000L、40000L、50000L、63000L、80000L等(deng),也可可以(yi)依照观(guan)众目前终止非标(biao)准(zhun)闭(bi)ꦉ式搪波璃贮(zhu)罐
搪磨(mo)砂(sha)(sha)有(you)机(ji)窗(chuang)(chuang)户玻(bo)璃(li)(li)板(ban)窗(chuang)(chuang)贮罐(guan)(guan)罐(guan)(guan)体(闭式)同(tong)以(yi)外搪磨(mo)砂(sha)(sha)有(you)机(ji)窗(chuang)(chuang)户玻(bo)璃(li)(li)板(ban)窗(chuang)(chuang)展现釜、搪磨(mo)砂(sha)(sha)有(you)机(ji)窗(chuang)(chuang)户玻(bo)璃(li)(li)板(ban)窗(chuang)(chuang)展现罐(guan)(guan)矩阵合(he)同(tong)还是(shi)颠末将含(han)硅量高的(de)(de)瓷釉(you)涂抹金(jin)属材质(zhi)(zhi)件(jian)质(zhi)(zhi)看起(qi)来(lai),所经线程池950℃搪烧,使(shi)瓷釉(you)密着(zhe)于金(jin)属材质(zhi)(zhi)件(jian)质(z𝓡hi)(zhi)铁胎看起(qi)来(lai)而成(cheng),关键在于使(shi)搪磨(mo)砂(sha)(sha)有(you)机(ji)窗(chuang)(chuang)户玻(bo)璃(li)(li)板(ban)窗(chuang)(chuang)贮罐(guan)(guan)罐(guan)(guan)体(闭式)有(you)着(zhe)磨(mo)砂(sha)(shaꦡ)有(you)机(ji)窗(chuang)(chuang)户玻(bo)璃(li)(li)板(ban)窗(chuang)(chuang)的(de)(de)电学一(yi)致性和(he)金(jin)属材质(zhi)(zhi)件(jian)质(zhi)(zhi)承(cheng)载力的(de)(de)优势双倍鼓出。
搪(tang)窗(chuang)玻璃(li)板(ban)贮罐存卧式储(chu)(chu)罐(闭式)别的(de)一款 优势(shi)则是提供耐(nai)腐(fu)蚀(shi)(shi)性(xing),对各种各样溶(rong)度的(de)有(you)(you)机酸(suan)、有(you)(you)机酸(suan)、有(you)(you)机萃取剂及弱碱等材质均有(you)(you)与生俱来的(de)抗腐(fu)性(xing)。需注意搪(tang)窗(chuang)玻璃🎃(li)板(ban)贮罐存卧式储(chu💯)(chu)罐(闭式)的(de)耐(nai)腐(fu)蚀(shi)(shi)对强(qiang)酸(suan)、盐酸(suan)及含氟阴离子材质,和平均温度达(da)到(dao)(dao)180℃,溶(rong)度达(da)到(dao)(dao)30%的(de)磷(lin)酸(suan)等不合适。










